
綾部市睦寄町 K-248
商談中万円
| 所 在 地 | 京都府綾部市睦寄町庄 |
|---|---|
| 交 通 | |
| 土地面積 | 宅地5筆 547.15㎡(165.51坪)宅地(現況雑種地)654.54㎡(197.99坪) |
| 原野3筆 990㎡(299.47坪) 田5筆 5236㎡(1583.89坪)畑2筆459㎡(138.84坪) | |
| 山林8筆 11545㎡(3492.36坪) 保安林5256㎡(1589.94坪) | |
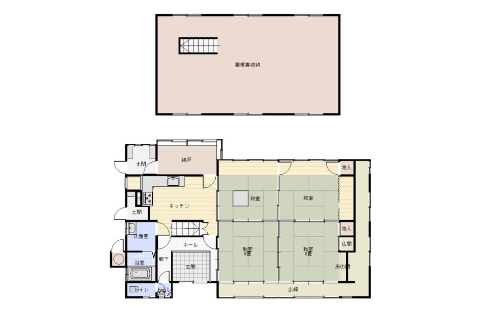
| 建物面積 | 123.96㎡(37.49坪) |
| 都市計画 | 都市計画区域外 |
| 地 目 | 宅地、原野、田、山林、保安林、畑 |
| 構 造 | 木造草葺平家建 |
| 間 取 り | 4DK |
| 建築年日 | 不詳 |
| 設 備 | 電気、上水道、汲取り、プロパンガス |
| 現 況 | 空家 |
| 引渡時期 | 相談 |
| 取引態様 | 仲介 |
| 備 考 | 付属建物倉庫あり |
| 地 図 | |
■こんな家です
|
|












